Продам или обменяю уютную 1 комнатную квартиру в центре города без комиссии с покупателя!
Возможна ипотека от 14,75 % через нашу компанию с ключевыми банками-партнёрами. Подробнее можно узнать при звонке или на бесплатной консультации.Теплая квартира в сердце нашего красивого города, на улице Гоголя 72 - это не просто жилье, а ваш новый стиль жизни. С застекленным балконом, где можно наслаждаться утренним кофе или вечерним закатом, вы каждый день будете чувствовать себя в центре событий.
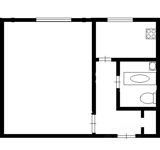
Квартира, расположенная на 4 этаже 5-этажного здания, предлагает изолированные комнаты, общей площадью 31,9 м. Уютная кухня площадью 5 м и просторная жилая площадь в 20 м - хорошее сочетание для комфортной жизни.
Пластиковые окна (ПВХ) открывают вид на улицу, а застекленный балкон позволит наслаждаться атмосферой города в любое время. В квартире уже есть все необходимые коммуникации: электричество, газ, вода и интернет. Надежные сейф-двери обеспечивают дополнительную безопасность.
Отремонтированная кухня с гарнитуром готова принять ваши кулинарные шедевры, а выровненные стены и натяжной потолок создадут приятную атмосферу. Облицовка стен в санузле выполнена из пластиковых панелей, а модернизированный трубопровод и канализация добавляют удобства.
Ваша новая жизнь будет наполнена удобствами. Всего в нескольких шагах находятся продуктовые магазины, такие как Магнит и Монетка, а также остановка общественного транспорта, которая свяжет вас с любым уголком города - КГУ и Библиотека Маяковского всегда под рукой. В окрестностях располагается все необходимое: стоматология, школа 38 и детский сад 1, аптека "Здоровье" и салон красоты "Чик-Чик",- то что нужно для комфортной жизни вашего семейства.
Придомовая территория радует глаз: аккуратно уложенные асфальтированные дорожки, ухоженные газоны и освещение обеспечат вам комфортные прогулки и прогулки с детьми. А для активных людей есть спортивные и детские площадки, где можно проводить время на свежем воздухе.
Ваша новая жизнь будет наполнена удобствами. Всего в нескольких шагах находятся продуктовые магазины, такие как Магнит и Монетка, а также остановка общественного транспорта, которая свяжет вас с любым уголком города - КГУ и Библиотека Маяковского всегда под рукой. В окрестностях располагается все необходимое: стоматология, школа 38 и детский сад 1, аптека "Здоровье" и салон красоты "Чик-Чик",- то что нужно для комфортной жизни вашего семейства.
Придомовая территория радует глаз: аккуратно уложенные асфальтированные дорожки, ухоженные газоны и освещение обеспечат вам комфортные прогулки и прогулки с детьми. А для активных людей есть спортивные и детские площадки, где можно проводить время на свежем воздухе.
В вашем новом доме вас ждет не просто уют, но и безопасность. Современный домофон с видеонаблюдением заботится о вашем покое. Удобные и чистые подъезды, оцененные на высокую оценку, создают приятное первое впечатление. Постройка 1961 года из кирпича обеспечивает надежность и ощущение тепла.
Ваша новая жизнь в центре г