Мы используем куки-файлы. Соглашение об использовании

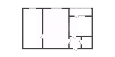
Продается 2-комн. квартира, 43,6 м²

Общая площадь43,6 м²
Площадь кухни7 м²
Этаж1 из 5
Год постройки1988
Предлагается к продаже 2-х комнатная квартира на комфортном первом этаже. Квартира под ремонт. Окна деревянные. Балкон застеклен деревом, выход на балкон из кухни. Ванная комната и сан/узел совмещены. В прихожей есть ниша , которую можно использовать под гардеробную. Работа. со всеми видами сертификатов. Помогу в оформлении ипотеки. Гарантия юридической чистоты и безопасности сделки! Заинтересовал вариант? Звоните! Показ в любое удобное для Вас время! Дополнительно оплачивается комиссия с покупателя. Код пользователя: 129842 Номер в базе: 12412156
Позвоните автору
Вам ответят на все вопросы

О квартире

Тип жилья

Вторичка

Общая площадь

43,6 м²

Площадь кухни

7 м²

Высота потолков

2,5 м

Санузел

1 совмещенный

Балкон/лоджия

1 лоджия

Вид из окон

Во двор

Ремонт

Без ремонта

О доме

Год постройки

1988

Строительная серия

1-447

Тип дома

Кирпичный

Тип перекрытий

Железобетонные

Подъезды

3

Парковка

Наземная

Отопление

Центральное

Аварийность

Нет

Газоснабжение

Центральное

Спросите умного помощника
Получите экспертное мнение о жилье

Расположение

Ипотечный калькулятор
  • Базовая
  • Семейная
  • ИТ-ипотека
  • 20%
  • 30%
  • 40%
  • 50%
лет
  • 10 лет
  • 20 лет
  • 30 лет
Загружаем предложения от застройщика и банков
Зимой будет тепло
Дома такой же серии обычно хорошо сохраняют тепло
7
Помощь риелтора
Проверенный риелтор поможет купить или продать квартиру
3 000 000 ₽
Цена за метр
68 807 ₽/м²
Условия сделки
свободная продажа
Ипотека
возможна
Агентство недвижимости
Документы проверены
На Циан
8 лет
Объектов в работе
805