Мы используем куки-файлы. Соглашение об использовании
Аукцион
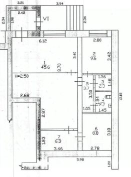
Площадь79 м²
Этаж1 из 5
ПомещениеСвободно
Код лота: РАД-446714. Реализуется на торгах. Реализация через аукцион! Нежилое помещение, площадью 79 кв. м. , этаж 1, кадастровый номер 45:26:050217:319, расположенное в многоквартирном доме. Наличие обременений: не зарегистрировано. Имеется действующий договор аренды от 20. 07. 2022г. на площадь 79 кв. м. В настоящее время договор аренды в процессе расторжения по инициативе арендатора. Адрес: Курганская область, г. Шадринск, ул. Кооперативная, д. 6. Возможен вариант предоставления права аренды на данный объект! https://catalog. lot-online. ru/index. php?dispatch=products. view&product_id=1598317
АукционОбъект реализуется посредством электронных торгов. Конечную информацию об оплате, дополнительных платежах и условия заключения договора смотрите в документах извещения к лоту, на сайте электронной торговой площадки.
lock

Войдите или зарегистрируйтесь
для просмотра информации

Просматривайте условия сделки и всю информацию об объекте
Сохраняйте фильтры в поиске и не вводите заново
Доступ к избранному с любого устройства
Неограниченное добавление в избранное
  • Инфраструктура
  • Похожие рядом
  • Общая площадь79 м²
Помощь надёжных риелторов
Риелтор партнёр Циан поможет купить или продать любую недвижимость
Документы проверены
Начальная цена, аукцион
4 477 400 ₽
58 872 $
49 957
Цена за метр
56 676 ₽
Налог
НДС включен: 807 400 ₽
Агентство недвижимости
Документы проверены
На Циан
6 лет
Объектов в работе
530