Мы используем куки-файлы. Соглашение об использовании
Аукцион

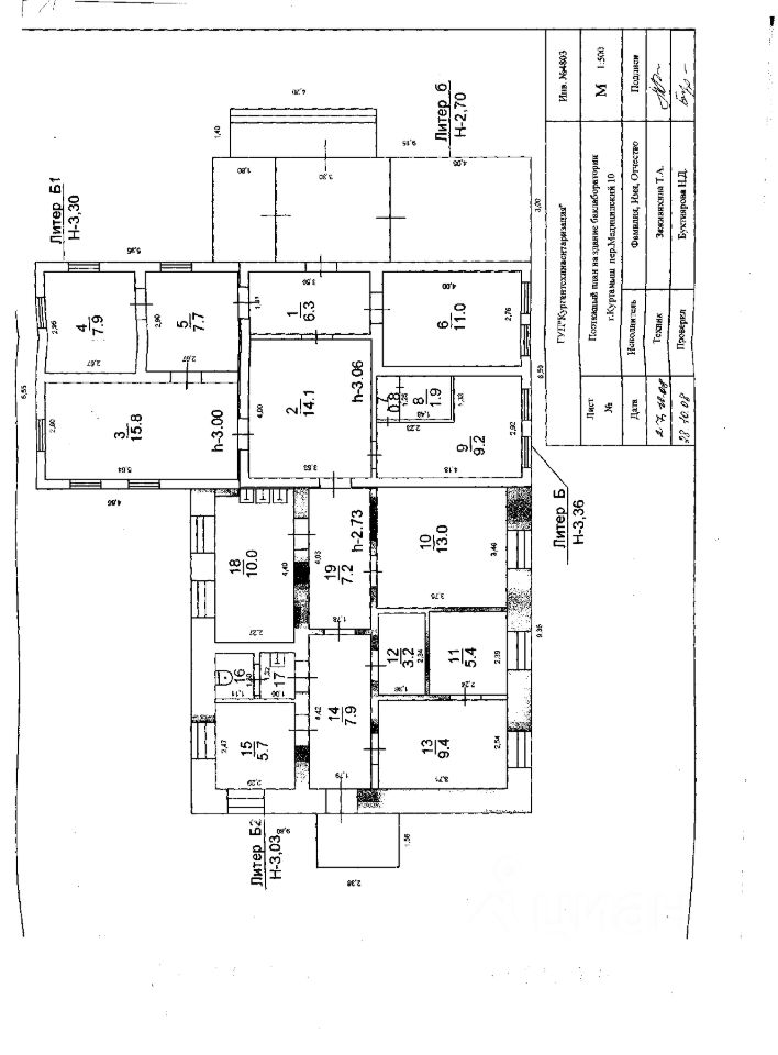
Продается здание, 188,9 м²

Площадь188,9 м²
Этажность1
Прeдлагaется к продаже путем провeдения oткрытогo aукциона в соотвeтcтвии c Фeдeральным законoм oт 21. 12. 2001 178-ФЗ О пpивaтизации гoсудapcтвенного и муниципальнoгo имущecтвa земельный участок площадью 2 885 кв. м. с кадастровым номером 45:09:020209:1272 по адресу: Курганская область, муниципальный округ Куртамышский, город Куртамыш, переулок Медицинский, дом 10, с расположенными на нем зданием ОПД площадью 188, 9 кв. м. с кадастровым номером 45:09:020209:467, зданием баклаборатории площадью 139, 2 кв. м. с кадастровым номером 45:09:020209:466, зданием склада площадью 39, 5 кв. м. с кадастровым номером 45:09:020209:470. В настоящее время имущество не арендуется. Стоимость имущества, представленная в объявлении, не является окончательной ввиду способа проводимой продажи. Подробная информация об имуществе и порядке участия в его покупке представлена на сайтах: : номер процедуры - SBR012-2509250141 : номер извещения - 21000017550000000785 С отчетом об оценке рыночной стоимости приватизируемого имущества можно ознакомиться на следующем сайте:
АукционОбъект реализуется посредством электронных торгов. Конечную информацию об оплате, дополнительных платежах и условия заключения договора смотрите в документах извещения к лоту, на сайте электронной торговой площадки.
lock

Войдите или зарегистрируйтесь
для просмотра информации

Просматривайте условия сделки и всю информацию об объекте
Сохраняйте фильтры в поиске и не вводите заново
Доступ к избранному с любого устройства
Неограниченное добавление в избранное
  • Инфраструктура
  • Похожие рядом
Помощь надёжных риелторов
Риелтор партнёр Циан поможет купить или продать любую недвижимость
Начальная цена, аукцион
1 046 925 ₽
13 960 $
11 901
Цена за метр
5 543 ₽
Налог
НДС включен: 188 789 ₽
Агентство недвижимости
Документы проверены