Мы используем куки-файлы. Соглашение об использовании
Площадь360,58 м²
Этаж2 из 4
ПомещениеСвободно
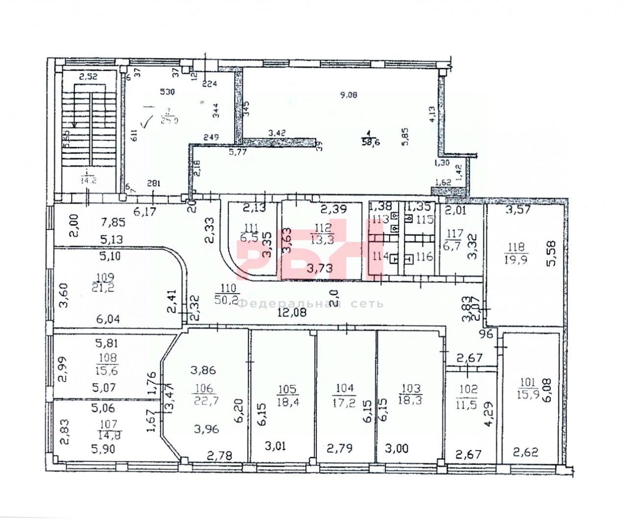
Аренда Офисный блок 360 кв.м. Адрес: г. Курган ул. Автозаводская, д.5, второй этаж офисного здания отдельный вход круглосуточный доступ современный ремонт офисов ремонт лестничных маршей 10 кабинетов от 10 кв.м до 30 кв.м. Возможна перепланировка зал для переговоров со стеклянными стенами комната отдыха/приема пищи санузел вспомогательные помещения для хранения или других нужд большие окна теплые светлые помещения современное светодиодное освещение большая парковка в здании несколько интернет-провайдеров Остановка общественного транспорта 200 метров. Пять автобусных маршрутов из всех районов города. Арендная плата 280 рублей за кв.метр, плюс электричество. Остальные коммунальные уже включены в стоимость Арт. 19345686
lock

Войдите или зарегистрируйтесь
для просмотра информации

Просматривайте условия сделки и всю информацию об объекте
Сохраняйте фильтры в поиске и не вводите заново
Доступ к избранному с любого устройства
Неограниченное добавление в избранное
Позвоните автору
Вам ответят на все вопросы
Остались вопросы по объявлению?
Позвоните владельцу объявления и уточните необходимую информацию.
  • Инфраструктура
  • Похожие рядом
  • Тип зданияАдминистративное здание
  • Общая площадь360,58 м²
Центральное отопление
Помощь надёжных риелторов
Риелтор партнёр Циан поможет купить или продать любую недвижимость
101 000 ₽/мес.

Прямая аренда (от года), доступны арендные каникулы, предоплата за 2 месяца

1 342 $/мес.
1 143 /мес.
Цена за метр
3 362 ₽ в год
Налог
НДС не включен
Комиссия
нет
Коммунальные платежи
включены
Эксплуатационные расходы
не включены
Агентство недвижимости
Суперагент
На Циан
7 лет
Объектов в работе
992