


40 075 ₽/м²
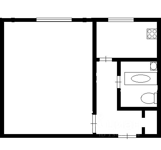
Предлагаем вашему вниманию уютную однокомнатную квартиру. Адрес: г. Курган, микрорайон Тополя, переулок Мирный, дом 4А. Общая площадь: 39.9 кв.м, просторная кухня, раздельный санузел. Расположена на 2-м этаже двухэтажного кирпичного дома. Квартира после качественного ремонта: свежая отделка стен, новые двери и пластиковые окна. Удобства: заменённые коммуникации, водонагреватель, большая душевая кабина. Во дворе обустроенная детская игровая зона. Инфраструктура рядом: продуктовые магазины, почтовое отделение, дошкольное учреждение, школа, остановки автобусов. Идеальное местоположение вдали от городского шума и суеты. Продажа осуществляется двумя взрослыми собственниками. Этот вариант станет прекрасным выбором для тех, кто ценит комфорт, удобство и спокойствие загородной жизни! Свяжитесь с нами прямо сейчас, чтобы увидеть своё будущее жильё своими глазами! специально для сайта ЦИАН объект 409693



























































































